Lymington Avenue, London, N22
Under offer

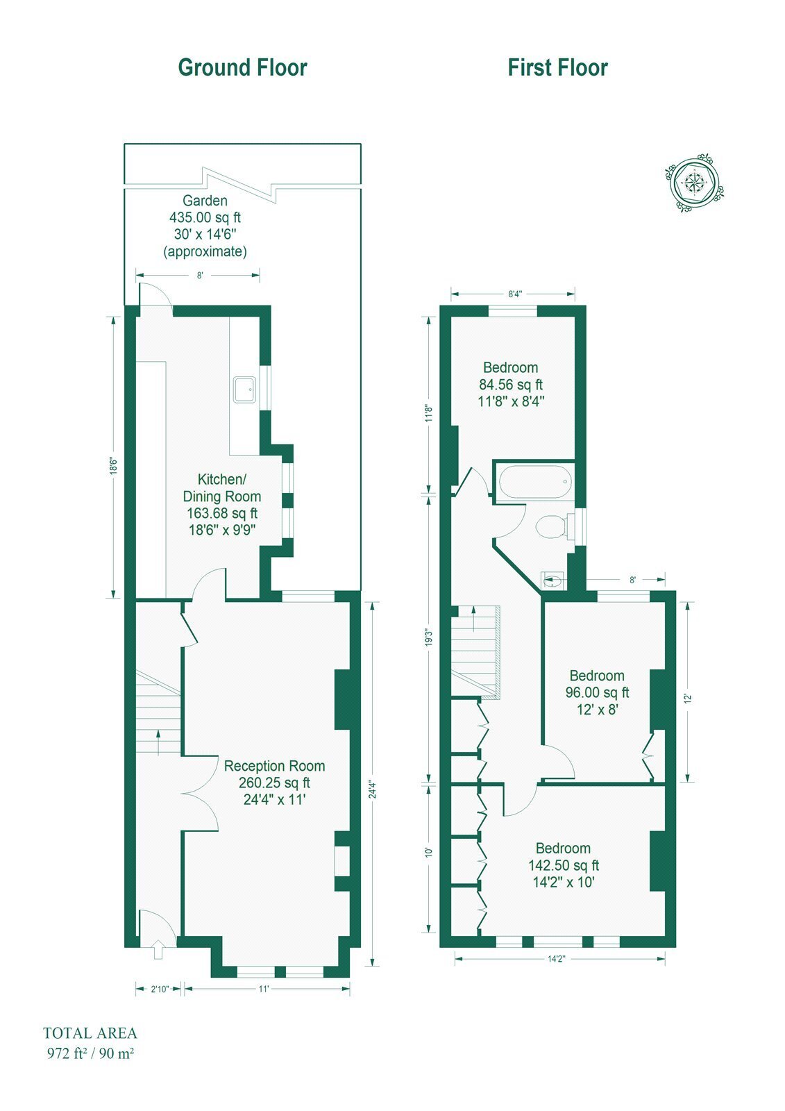
3 beds | 1 baths | 1 receptions | Offers in excess of £700,000


Period architecture meets design finesse. Situated in the renowned Noel Park Conservation Area is this three double-bedroom Victorian House, offering a generous 1108 Sq.Ft (approx) of living space. This home is located within walking distance from Turnpike Lane Station (Piccadilly Line Z3) and the prominent Wood Green High Street. It is safe to say this property makes a formidable claim for the best-refurbished and designed house on the market in the Harringay area. A viewing opportunity is not to be missed!

- INTERIOR DESIGN AND LAYOUT

Designed and refurbished by an award-winning development team. In this specific project, the developers have partnered up with designers to create a unique home. The Property draws in two styles giving the property its distinctive interior design. The first being, of course, the Period Victorian Charm. Seen throughout the property, showcasing timber framed sash windows, Parquet style wood floors along with glorious high ceilings. The Property is then finished with a modern contemporary style with bespoke Crittall style doors and a custom-made Kitchen!

Both styles meet at the first point in the reception areas. This room draws in natural light from the end to end due to its through lounge layout. Fitted with double glazed timber Sash windows and laced parquet style flooring.

This area of the property then moves directly onto the property’s kitchen space. Lined with solid wood kitchen storage units and quartz worktops, high-end appliances and gold lined handles on wooden framed wall units. Also included is a Ceramic inset sink and under counter lighting. An ideal space to test cooking prowess.

The kitchen also comes with a built in Wine cooler.

The garden has been landscaped. Here you have a delightfully arranged outside space, paved with sandstone allowing ample space for garden furniture. The garden also has a freshly laid lawn along with a shrub borders. Perfect space to test those gardening skills.

The upstairs is made up of three double bedrooms. All vast in size, the space provides plenty of area for all types of bedrooms furniture. The Master bedroom is again full of light and pans the entire width of the building. The second and the third bedrooms are also substantial in size. Both provide aspect of the properties garden. A nice view to enjoy. Each bedroom has a different colour pallet. The designers have used a mix of light colour pallet's and warm homely colours, giving each room its own unique feel.

Bathrooms are rarely defined as spectacles but that word suites here! Lined with floor to ceiling tiling matt blacklined taps, a panel bathtub with a rainfall shower attachment.

Finally, also found on this level is the buildings loft access. Suitable for loft conversion's (not many streets in Noel Park can !

LOCATION

Noel Park Conservation area has flourished in the past years, and it has long stamped itself as a highly desirable place to live in London. Established between 1883 and 1902 and built by the Artizan Company it offers residents a piece of Victorian history of ‘way back when’ and ‘of the now’ it provides a vast choice of local shops and the quirky cafés/coffee shops, bars, music venues, leisure and art centres. If these do not meet the desires, then residents can take a short stroll to the UK renowned Alexandra Palace. Known to be a great day out, with places to dine and relax all through the day. A real landmark of our lovely City. Wood Green High Street is also in the properties imminence. To simply put it, nothing goes missed here. From household goods to major retailers and not forgetting great places to dine such as the famously known Tashish restaurant. This patch is going from pillar to pillar, a perfect area to buy if a purchaser is looking for a property with a bright future.

The amenities do not stop there with this property, within 10 minutes you can reach Wood Green Underground (Piccadilly Line Zone 3) which is found connected to the central shopping district of the patch. As well as the Underground you have the array of different shops which include a Shopping Mall along with a range of diverse restaurant’s offering a variety of cuisines. When it comes to shopping and dining the Wood Green High Road is bound to meet all requirements, whether you are looking for clothing, household goods or groceries, there is nothing missed here.

The property is offered with 'no onward chain.'

Please contact us to arrange a viewing.

Think…Property Inc!

Material Information

Expand

Read More