Beresford Road, London, N8
Under offer

3 beds | 2 baths | 2 receptions | Offers in excess of £850,000


  • THREE BEDROOM VICTORIAN HOUSE
  • TWO CELLARS
  • TWO RECEPTIONS
  • MASSIVE GARDEN
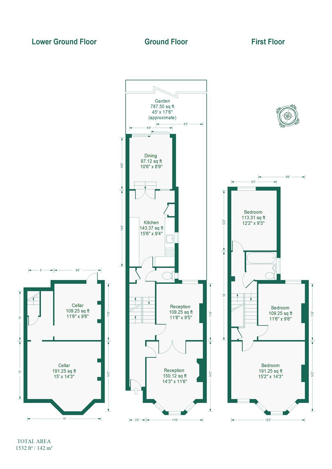
  • APPROXIMATELY 1,500 SQ FT (142 M)
  • TURNPIKE LANE UNDERGROUND STATION (PICCADILLY LINE ZONE 3) AND HORNSEY BR

Welcome to Beresford Road – a substantial period home bursting with character and Victorican charm. Perfectly positioned on a desirable residential street in N8. This spacious property spans three levels, offering over 1,500 sq ft (142 m²) of space and is an excellent opportunity for buyers with a vision to create their dream home. Within walking distance of Turnpike Lane Underground Station (Piccadilly Line Zone 3) and Hornsey BR providing direct access to London Liverpool Street.

THE PROPERTY

GROUND FLOOR - features a welcoming double reception room, rich with natural light and period charm, ideal for a formal lounge and secondary living area.

LOWER GROUND FLOOR - Towards the rear, the kitchen leads into a bright dining space with direct access to a generous private garden. This floor also boasts two cellar rooms with ample head height – ideal for conversion. This level holds massive potential for those looking to add value and enhance functionality.

FIRST FLOOR - The home offers three generously sized bedrooms, including a standout front-facing principal bedroom, perfect for a master suite. A family bathroom and additional storage spaces complete the floor, offering comfortable living arrangements for families or professional sharers.

With a classic Victorian façade and set on a tree-lined street, this property is ready for someone to breathe new life into it. Whether you're looking to renovate, reconfigure, or extend (STPP), this property is for buyers ready to create something special.

- THE LOCATION AND AMENITIES

The building itself pays homage to a period of Victorian Style which is apparent throughout the Harringay Ladder. Historically the land was once part of the iconic ‘Estate of Harringay House’, which was built by Edward Gray in 1792. It was situated at the top of the hill and within a loop of the New River.

The ladder itself was built between 1881 and 1899, under the aegis of the British Land Company. Now over a hundred years on, it has firmly stamped itself as one of the most popular patches in North London to reside.

To get around town, you have a host of transport links. Situated within walking distance of Turnpike Lane Underground Station (Piccadilly Line Zone 3) and Hornsey BR providing direct access to London Liverpool Street. The location also has numerous and regular bus links providing routes to most significant parts of London.

Locally to the property is the renowned Harringay Green Lanes. With no shortage of local stores selling fresh produce, bars/pubs, restaurants and quirky coffee shops providing perfect spots to shop, dine and relax. Not forgetting the selection of green spaces surrounding the flat. At the bottom of Frobisher Road, you will find Ducketts Common, a favourite park in the area and home to an array of events throughout the year. A great place to spend some time with friends and family if the weather permits!

Locally you also have North Harringay Primary School, a great school in immediate proximity. A huge box ticked here for incoming buyers with this criterion in their baseline.


Call us to arrange a viewing.

‘Think…Property Inc!’

Material Information

Expand

Read More