Muswell Hill Broadway, London, N10

£2,800 pcm


An exciting opportunity for a business to take on an established Bar/Club found in an outstanding location in the heart of Muswell Hill Broadway. The space is designed with an emphasis on modern contemporary style. The retail parade here bustles with trade all through the day, running a successful bar/club here is already proven by the businesses in the surround.

THE BAR/CLUB

This commercial space holds an A3 licence (permits the sale of food and drink for consumption on the premises). The bonus is that the Landlord has acquired permission allowing business owners to serve alcohol without a purchase of food needed. This will allow for dining and drinking spaces to be created.

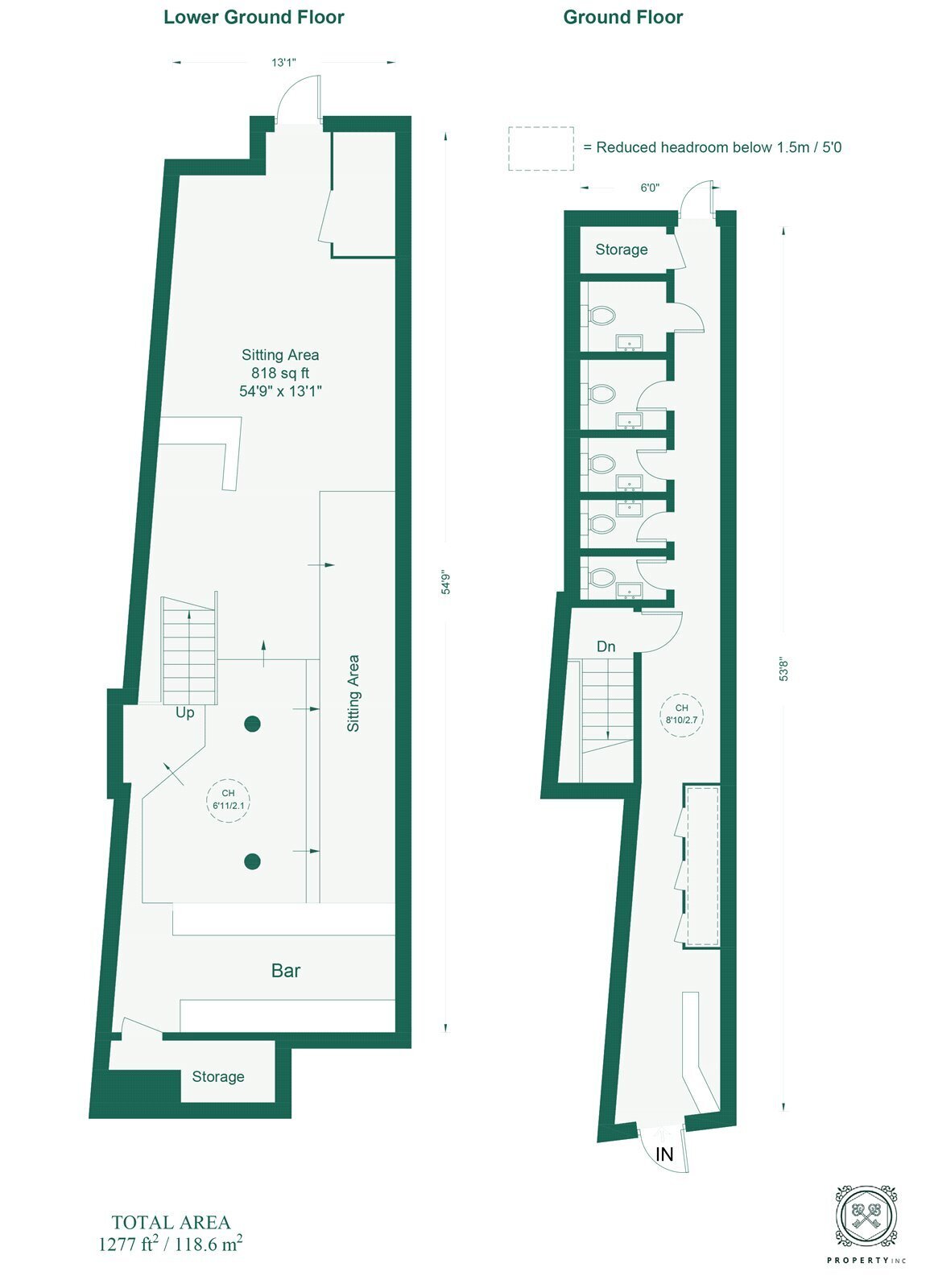
The unit offers a generous space of 1277 sq. ft. allowing for any new business to design according to their taste and need. Not to mention there are five WCs, situated on the ground floor.

This space is not only used as a bar/club but also a venue for private events and occasions, the business opportunities here are endless.

The space has been redesigned by the Landlord to be the perfect fit for the area. The local community in this area seem to like unique spaces and the design of this space fits that bill exactly. With the right owner taking it over, with no doubt this space will be a continued success.

LOCATION

London’s most vibrant and diverse areas. This location brings an abundance of trade all through the day and not forgetting the busy nightlife. The area is well known for its pubs, coffee shops, restaurants, and live music scenes, supplementing any incoming business. The Broadway Muswell Hill never fails to be eventful. It connects Crouch End’s hipster heartlands and neighbours other immensely popular patches; this area is known to be one of North London’s most highly desired business locations.

The location is set up with convenience in mind with multiple bus links right outside the property providing bus routes around the city.

To consider:

Annual Rent - £42,000 Per annum

Premium: OFFERS IN EXCESS OF £120,000 to include all fixtures and fittings.

Rates: TBC. Interested parties are advised to make their own enquiries to the local authority.

Lease: 17 Years

Opening hours permitted: 9:00 am to Midnight (with potential to extend with the appropriate license application)

The Premises has an Alcohol license granted.

Available straight away, please call us to arrange a viewing.

Think...Property Inc!

Material Information

Expand

Read More